Under Development
Proctor Place
This development, adjacent to Madison Meadow and the Proctor Triplex, brings an additional 16 duplex-style 3BR/2BA homes to South Tacoma. After significant road and infrastructure improvements were made, vertical construction began in spring 2025.

Upcoming Developments
Looking to the future, there is much to be excited about as we plan continued growth and impact.
Orchard Cottages
Orchard Cottages will be four 2BR/1BA cottage-style units built on surplus TPU property at the corner of N 18th & N Orchard Street in Tacoma. Due to the small lot size, the homes will be primarily constructed offsite. Onsite work on Orchard Cottages will begin in late 2026 with limited opportunities for volunteers to build sheds and help with landscaping.

Frederickson South
Built in partnership with the Pierce County Community Development Corporation, Frederickson South will bring 28 permanently affordable homes to the Frederickson area of southeast Pierce County. This development will include 20 duplex-style townhomes, each with three bedrooms and two bathrooms, as well as 8 cottage-style two-bedroom one-bath detached homes. Utility and site work will begin in late 2026 with estimated project completion by 2031.

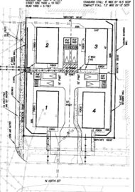
Sherwood
This 24-home development in South Tacoma (near S 80th & S Sheridan) will offer a mix of detached homes and duplexes with garages built around a cul-de-sac. The project has preliminary plat approval and final site designs are currently under review for permitting.
